Территория участка граничит:
• с северо-запада – с красными линиями Перовского шоссе, далее промышленная территория
• с северо-востока – с красными линиями 3-й Карачаровской ул., а также жилой территорией
• с юга – с 1-м участком Горьковского направления Московской железной дороги от пересечения с Курским направлением Московской железной дороги до пересечения с Московской окружной железной дорогой. Ближайшие станции метро: "Нижегородская" на пересечение Некрасовской линии метрополитена и МЦК (0,8 км), "Нижегородская" МЦД (0,6 км).
Жилой комплекс

г. Москва, Внутригородская территория
муниципальный округ Нижегородский,
шоссе Перовское, земельный участок 2
В объемах данного проекта выполнены сети:

• наружные сети водоснабжения
• наружные сети хозяйственно-бытовой канализации
• наружные сети дождевой канализации
• наружное освещение
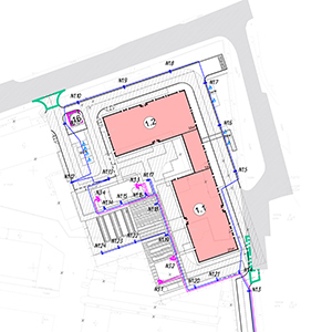
Проектом предусматривается инженерное обеспечение двух жилых корпусов (1.1, 1.2), со встроенно-пристроенными помещениями общественного назначения на первых этажах зданий и подземной частью.
Территория участка граничит:
• с северо-запада – с красными линиями Перовского шоссе, далее промышленная территория
• с северо-востока – с красными линиями 3-й Карачаровской ул., а также жилой территорией
• с юга – с 1-м участком Горьковского направления Московской железной дороги от пересечения с Курским направлением Московской железной дороги до пересечения с Московской окружной железной дорогой. Ближайшие станции метро: "Нижегородская" на пересечение Некрасовской линии метрополитена и МЦК (0,8 км), "Нижегородская" МЦД (0,6 км).
Жилой комплекс
г. Москва, Внутригородская территория
муниципальный округ Нижегородский,
шоссе Перовское, земельный участок 2
В объемах данного проекта выполнены сети:

• наружные сети водоснабжения
• наружные сети хозяйственно-бытовой канализации
• наружные сети дождевой канализации
• наружное освещение
Проектом предусматривается инженерное обеспечение двух жилых корпусов (1.1, 1.2), со встроенно-пристроенными помещениями общественного назначения на первых этажах зданий и подземной частью.
Центральная спортивная арена спортивного комплекса им. Э.А. Стрельцова, тренировочное поле

г. Москва, Внутригородская территория муниципальный округ нижегородский, шоссе Перовское, земельный участок 2


г. Москва, Новохохловская, вл. 15
с подземной автостоянкой
Москва, Бумажный проезд,
уч. Владение 19/1

им. Э.А. Стрельцова.

Реализация проектных решений по подключению проектируемых комплексов к централизованным наружным сетям.
Компания Симпл-Проект
Делаем сложное простым
© Simple Project | 2020
Made on
Tilda